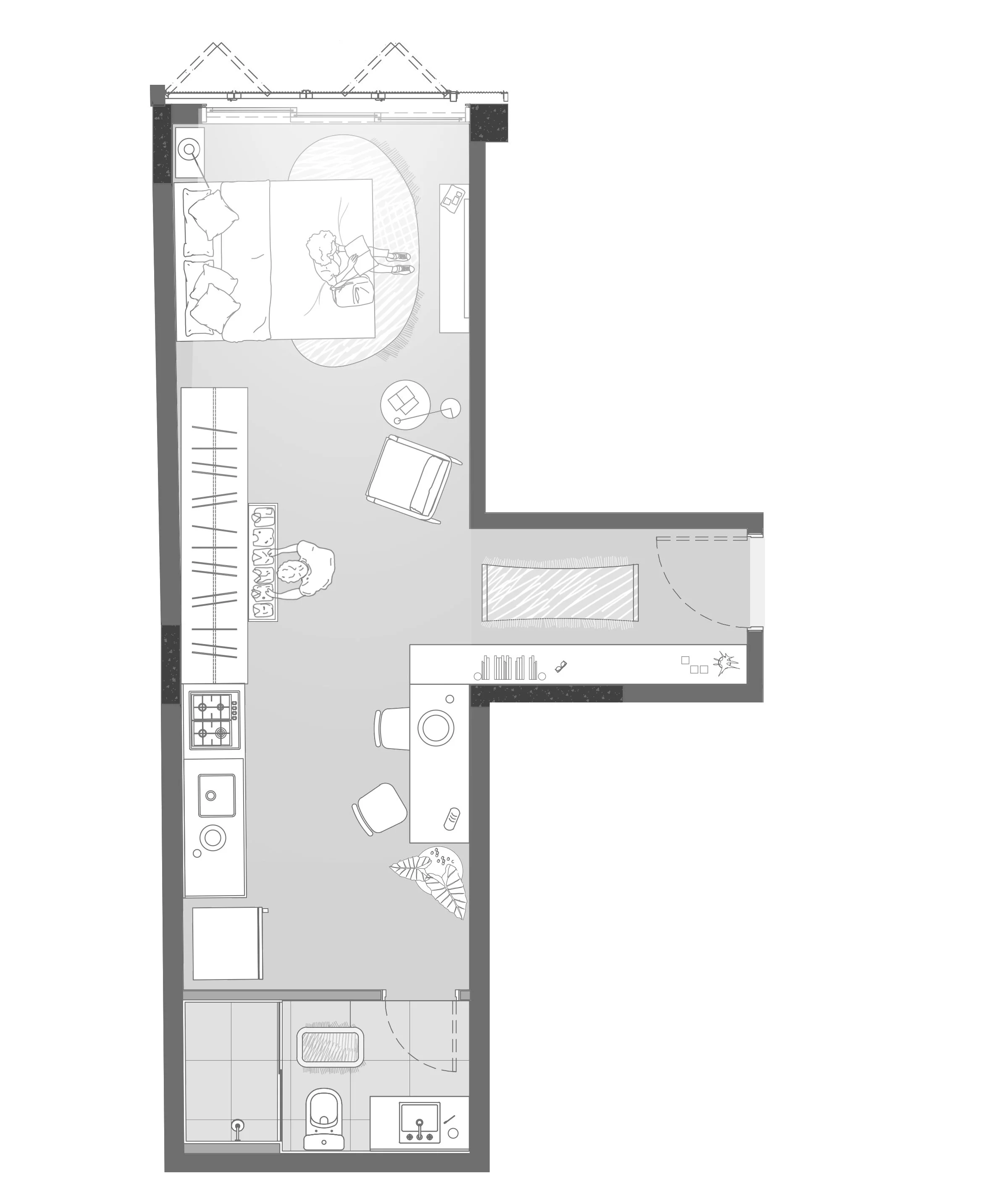
Studio

SEM VARANDA

Espaços ideais para quem valoriza a praticidade e o design inteligente em um ambiente compacto.

Os Studios do ATO77 variam entre 32 m2, 37 m2, 40 m2 e 45 m2, oferecendo opções flexíveis para diferentes necessidades.
Com layout que integra sala, cozinha e dormitório.

imagem para fins ilustrativos

45 m2

sala / cozinha + dormitório + banheiro

40 m2

sala / cozinha + dormitório + banheiro

37 m2

sala / cozinha + dormitório + banheiro

Anterior
Anterior

1 Dormitório